Зелёный сад
Всё для дачи и сада
Main menu
Главная
Новости
Статьи
Главная
»
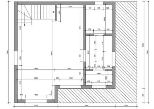
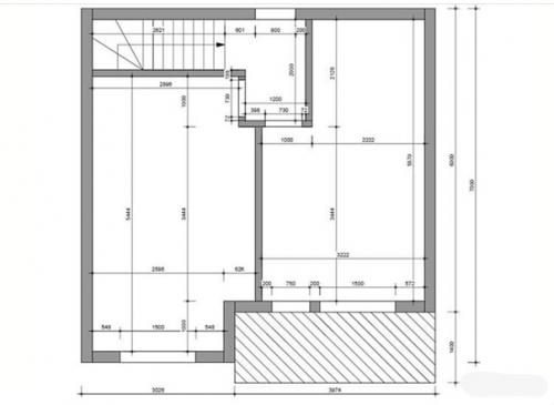
Дачный дом, 98 кв.
Дачный дом, 98 кв.
20.03.2021 в 15:47
Метров, годится для постоянного проживания
.
Понравилось? Поделитесь с друзьями!
⇦
Уличные мусорные баки. Помощники в сборе мусора
⇨
37 квадратных метров радости для души и тела.