Зелёный сад
Всё для дачи и сада
Main menu
Главная
Новости
Статьи
Главная
»
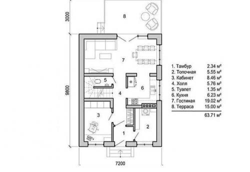
Загородный коттедж из кирпича - проект плюс план.
Загородный коттедж из кирпича - проект плюс план.
23.10.2019 в 14:47
Домик
.
Понравилось? Поделитесь с друзьями!
⇦
Сколько чеснока можно получить с 1 сотки. Способы и схемы посадки
⇨
Временный туалет на даче, так как вещь весьма необходимая.