Зелёный сад
Всё для дачи и сада
Main menu
Главная
Новости
Статьи
Главная
»
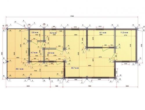
Дом из двойного бруса.
Дом из двойного бруса.
06.03.2020 в 15:47
Размеры: 7250 х 14935 мм + терраса 15, 5 м 2
.
Понравилось? Поделитесь с друзьями!
⇦
Кто таким методом выращивания рассады пользуется?
⇨
Анабланка - это необычная садовая земляника выведенная не так давно.