Построить теплицу из дерева под поликарбонат Своими Руками. Разновидности конструкций и чертежи
- Построить теплицу из дерева под поликарбонат Своими Руками. Разновидности конструкций и чертежи
- Как сделать парник Своими Руками из дерева. Проектирование теплицы из дерева
- Теплица из бруса 50х100. Теплицы Из Бруса: Как Создать Своими Руками
- Арочная теплица из дерева Своими Руками. Как правильно построить теплицу из дерева?
- Видео деревянная теплица Своими руками. Технология сборки.
Построить теплицу из дерева под поликарбонат Своими Руками. Разновидности конструкций и чертежи
Деревянные конструкции теплиц различаются, прежде всего, по своей форме.
Арочные

Чертеж арочной конструкции
При строительстве используется оконный брус. Арочные деревянные теплицы своими руками изготавливаются по чертежам:

В качестве примера здесь изображена арка с тремя секциями. Каждая секция покрывает 5 кв.м грунта. На рисунке ниже можно увидеть чертеж рамы для такого каркаса.
С этой статьей читают: Теплица термос своими руками
Двускатные
Наиболее распространены классические строения в виде домика или шатра. Как сделать деревянную теплицу такой формы изображено на рисунке:

Чертеж двускатной конструкции
При строительстве можно использовать приведенные здесь размеры или рассчитать свои. Крыша не должна получиться слишком прямая, чтобы избежать проломов из-за скопления снега зимой.
Односкатные
Такую конструкцию легко пристроить к дому или к другим постройкам на участке. Главное, чтобы она располагалась не в тени. Хорошо подойдет юго-восточная сторона.

Типовая схема примыкающей к строению конструкции
Куполообразные
Декоративное сооружение в виде купола самостоятельно соорудить будет сложно. Потребуется высокая точность для подгонки всех рам. Используется для покрытия участка небольшой площади.

Пирамидальные
Каркас в форме пирамиды возвести гораздо проще, чем купольный. Размеры, приведенные на чертеже, рассчитываются по формуле а=0,66b (а — высота, b – ширина основания).


Как сделать парник Своими Руками из дерева. Проектирование теплицы из дерева
Перед тем как построить теплицу своими руками из дерева, надо ее правильно спроектировать. Вначале определяемся, какого рода парник нужен – смотрим фотографии в доступных источниках, выбираем понравившиеся конструкции. Руководствуемся следующим:
- Местоположение участка, отведенного для строительства в деревне.
- Ширина и длина площадки, которая будет занята теплицей из дерева.
- Ветровые и снеговые нагрузки в районе – от этого зависит конструкция кровли.
Понятно, что фото могут не в полной мере соответствовать вашим запросам. Поэтому следующим этапом будет рисование эскиза, где конструкция теплицы из дерева будет отражена с нужными поправками. Также здесь можно отметить примерные размеры и характеристики строительных материалов. Для примера возьмем небольшую деревенскую теплицу, не требующую серьезных расчетов.

Теплица из дерева своими руками, на фото каркас, забранный пленкой
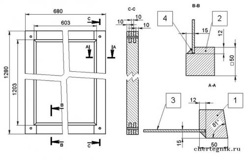
Продолжаем делать деревянную теплицу своими руками, чертежи будут следующим этапом. По готовому эскизу делаем чертежи парника. Тут оперируем точными цифрами, внимательно все рассчитываем. На каждой проекции выставляем размеры всех элементов, даже если они идентичны. Обязательно проставляем точки крепежей. Дополнительно на чертеже отмечается:
- Качество, сечение пиломатериалов.
- Качество, размеры крепежей, отдельно для каждой разновидности.
- Качество, количество других метизов.
- Если делаем фундамент, то вписываем марку бетона, фракцию песка, гравия, сечение арматуры.

Проект деревянной теплицы из поликарбоната своими руками, чертежи делаются с точными размерами
К сведению: чертежи всегда начинаем делать с проекции полностью готовой постройки. Далее, «раздеваем» парник, разбираем его на отдельные части. Чертим каркас целиком в разных ракурсах, затем отрисовываем отдельные узлы, элементы. Чем больше сооружение, тем более подробными должны быть чертежи.
Теплица из бруса 50х100. Теплицы Из Бруса: Как Создать Своими Руками
Поскольку крыша теплицы практически никакой нагрузки не несет (вес поликарбоната или пленки не в счет), то особо сложных креплений стропил изобретать не следует. В стропиле зарезается зуб, которым оно опирается на брусья верхней обвязки. Остальные крепления или на болтах, или гвоздями на деревянных пластинах.
Если финансовые ресурсы не позволяют купить готовую теплицу, надо браться за дело самому. Дерево наиболее доступный строительный материал.
Из всех деревянных строительных материалов наиболее доступны:
- Ель
- Сосна
- Лиственница
Из всех выше названных материалов наиболее дешевая ель, а наиболее дорогая лиственница. Из них же наиболее противостоит гнили лиственница

Теплица из бруса
Остальные требуют обработки специальными средствами против гнили.
Экзотические породы древесины рассматривать не будем.
Спецсредства против гнили
Поскольку деревянные конструкции широко распространены, промышленность разработала различные средства для защиты древесины не только от гнили, но и от различных жуков древоточцев.
Защита древесины условно разделяется на два вида:
- Химическая
- Биологическая
Есть два вида химической защиты:
- Антисептирование
- Консервирование
Антисептирование — наиболее популярный и не дорогой способ. Консервирование древесины можно провести только специальными средствами при помощи технологического оборудования. В домашних условиях сделать консервирование невозможно.
Антисептики бывают:
- Водорастворимые
- Водоотталкивающие
- Комбинированные
Кроме сложных химических пропиток древесину еще можно загрунтовать и покрасить или покрыть лаком. Если нельзя купить антисептирующие составы необходимо пользоваться народными средствами для защиты древесины от гнили.
Народные средства защиты древесины от гнили
Для того чтобы удешевить защиту деревянных конструкций теплицы можно применить отработанное масло от двигателя внутреннего сгорания. Для этого необходимо нагреть масло до температуры 60-70 градусов по Цельсию и обработать древесину.
Где взять отработанное масло? У соседа, знакомых, которые имеют автомобиль или на станции технического обслуживания автомобилей. Также оно бывает в крупных ремонтно-механических мастерских, транспортных компаниях и т.д.
Один из способов защиты древесины обжиг паяльной лампой. Если есть битум его тоже можно использовать для этих целей. Для этого необходимо разогреть битум и влить его тонкой струей в ведро с соляркой. Битум растворится в солярке и этим составом можно обработать конструкцию теплицы.
Очень полезный совет: Необходимо вливать горячий битум в холодную солярку, а не наоборот. Нарушение этого правила может привести к тяжелым ожогам от разбрызгавшегося битума.
ФУНДАМЕНТЫ
Всякое сооружение должно находиться на фундаменте. (См.)
Фундаменты для теплиц бывают:
- Ленточные
- Столбчатые
Ленточные фундаменты наиболее затратные с финансовой точки зрения и требуют много времени и трудовых ресурсов. Ленточные фундаменты строят под большие теплицы. Для маленьких теплиц вполне подойдут и столбчатые фундаменты.
Ленточные фундаменты требуют помимо песка, цемента и щебня еще и приличное количество обрезных пиломатериалов. Все фундаменты делаются под уровень. Если теплица небольшая можно использовать двухметровый строительный уровень. Если теплица большая, то здесь без нивелира не обойтись. Нивелир покупать не стоит. Он есть в любой строительной организации.

Ленточный фундамент
Столбчатые фундаменты
Применение столбчатых фундаментов позволяет существенно экономить бетон. Теплица сооружение не тяжелое. Нет смысла закапывать кубометры бетона в землю.
Фундаменты столбчатого типа бывают:
- Бетонные
- Кирпичные
- Блочные
- Бутобетонные

Столбчатый фундамент под деревянный дом
Иногда вместо опалубки для столбчатых фундаментов применяют трубы. Тогда фундамент имеет круглую форму.
Полезные советы:
Для деревянной теплицы можно использовать готовые бетонные столбы для ограды. Для этого их вкапывают в землю, особо не заботясь о соблюдении горизонтального уровня. После вкапывания в землю, столбы обрезают по уровню при помощи «болгарки» и алмазного круга.

Это значительно легче, чем выставлять по уровню каждый столб.
Фундамент должен быть строго горизонтальным. Любая неточность может в будущем сильно усложнить сборку каркаса теплицы. Вот что должен показать пузырьковый уровень в любой точке фундамента.
Если нее хватает длины пузырькового уровня следует использовать длинный ровный деревянный брусок на который ставят уровень.

Работа с пузырьковым уровнем
После окончания строительства столбчатого фундамента промежутки между столбиками заполняют бутовым камнем или другим строительным материалом.
Арочная теплица из дерева Своими Руками. Как правильно построить теплицу из дерева?
В наше время теплицы встречаются на многих дачных участках. Подобные конструкции не только покупают, но и изготавливают своими руками. Для этого применяются разные материалы. Сегодня мы разберём поэтапно, как нужно правильно конструировать оранжерею из дерева.

Особенности
Во многих регионах России овощи и фрукты лучшего выращивать в условиях правильно оборудованных теплиц. К примеру, болгарский перец, помидоры и огурцы хорошо плодоносят, если обеспечить им подходящий микроклимат. Сформировать его можно при помощи качественной теплицы.
Подобные конструкции делают из самых разных материалов. Например, на многих участках сегодня можно повстречать изделия с каркасами из алюминия или нержавеющей стали. Неплохой альтернативой этим вариантам являются жутко популярные модели из дерева. Их можно не только приобрести в специализированных торговых точках, но и сделать самому. Проведение таких работ считается достаточно простым. Важно лишь использовать качественные материалы и неуклонно следовать инструкции.
Многие домовладельцы останавливают свой выбор именно на таких сооружениях, поскольку они имеют много положительных характеристик.
Ознакомимся с их списком.
- Основным преимуществом деревянных конструкций считается то, что они являются безопасными, с экологической точки зрения. Они не будут негативно сказываться на здоровье человека или посадках, находящихся внутри теплицы. Даже если на дворе стоит сильная жара, дерево не будет выделять опасных веществ в окружающую среду, потому что их попросту нет в его составе.
- Чтобы самому сконструировать теплицу из древесины, хозяину не придётся закупаться специальными инструментами, которые зачастую имеют неоправданно высокую стоимость. Вполне хватит лишь стандартного столярного набора, состоящего из пилы, гвоздей и молотка.
- Тепличные каркасы из дерева отличаются тем, что имеют маленький вес. Однако это никак не сказывается на их прочности и долговечности. Повредить подобную конструкцию будет проблематично.
- Не стоит бояться повреждения определённой деревянной детали, потому что её можно будет заменить на новую. На это не уйдёт много сил и времени, что говорит о практичности таких теплиц.